Appartement centre ville, proche commerces et commodités, 76200 DIEPPE
Appartement centre ville, proche commerces et commodités, 76200 DIEPPE
Appartement centre ville, proche commerces et commodités, 76200 DIEPPE
Appartement centre ville, proche commerces et commodités, 76200 DIEPPE
Appartement centre ville, proche commerces et commodités, 76200 DIEPPE
Appartement centre ville, proche commerces et commodités, 76200 DIEPPE
Appartement centre ville, proche commerces et commodités, 76200 DIEPPE
Appartement centre ville, proche commerces et commodités, 76200 DIEPPE
Prix : 439500

Votre agence immobilière Terres et demeures de Normandie vous propose la résidence 16 V.H située en plein coeur de ville, idéalement implantée, proche de toutes les commodités, non loin de la gare, du port et de la plage de Dieppe.
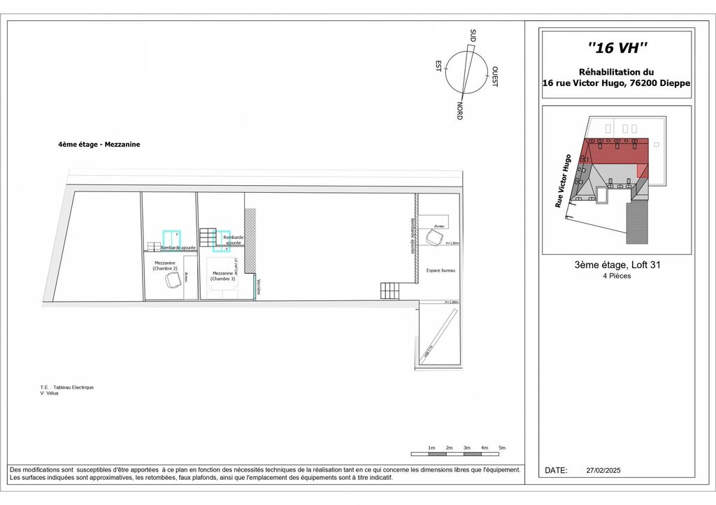
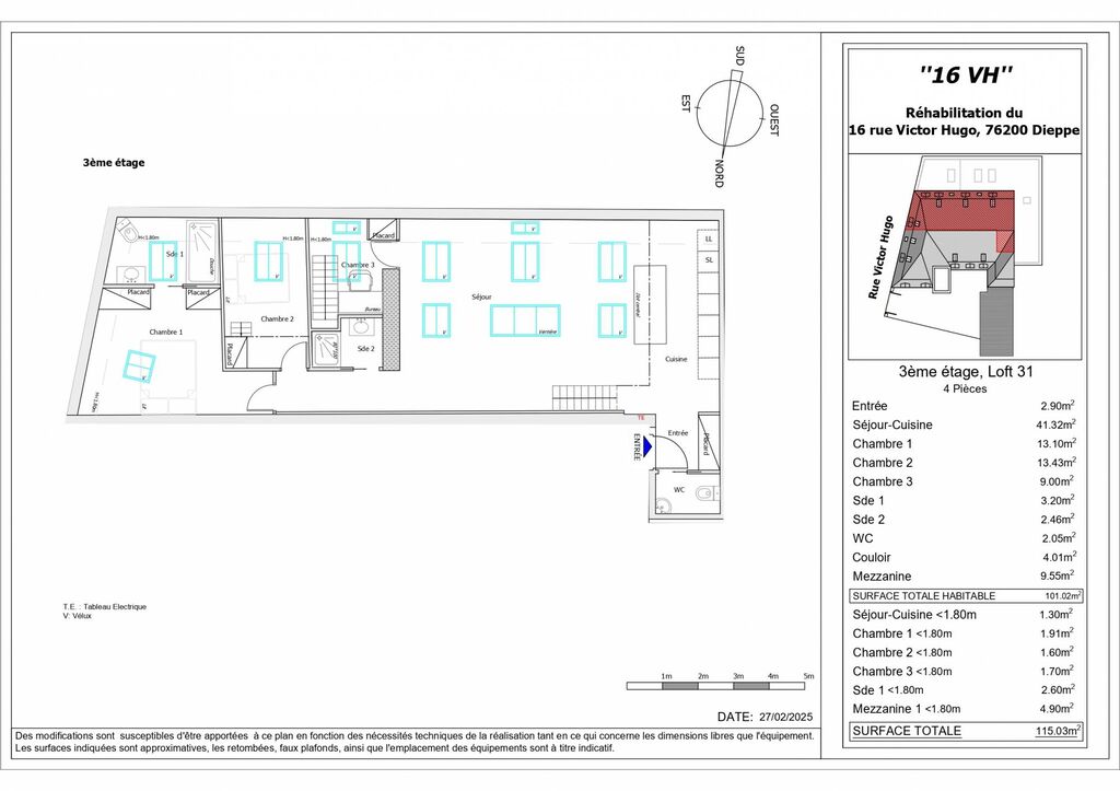
La résidence haut de gamme est équipée d'un ascenseur et vous offre au 3ème étage: le lot n°31: Appartement d'une surface de 101.02 m² en duplex loft comprenant: Entrée, wc, séjour-cuisine, 3 chambres dont 1 suite parentale, salle d'eau.
A l'étage: Mezzanine, espace télétravail
Parking disponible à proximité de la résidence.
Éligible PTZ et DE NORMANDIE.
Immeuble en cours de rénovation
Livraison automne 2025
Agent Commercial : Laurent DEEST, RSAC N° 320 951 221.
Tel : 06 50 33 52 03
Les informations sur les risques auxquels ce bien est exposé sont disponibles sur le site Géorisques : www.georisques.gouv.fr
Bien soumis au statut juridique de la Copropriété. Nb de lots : 22. Charges annuelles de copropriété (Montant moyen annuel quote-part du budget prévisionnel vendeur) : 1 000 €.
Surface CARREZ : 101.02 m²

L'immobilier de caractère, l'âme du pays de Caux