À vendre : Salon lumineux du Lot 15 - Spacieux duplex de 52.01 m² avec un salon accueillant, idéal pour toute la famille.
À vendre : Façade de la Résidence 16 V.H - Immeuble du 19ème siècle entièrement réhabilité, alliant charme historique et confort moderne au cœur de Dieppe.
À vendre : Terrasse privée de 14.12 m² - Profitez d'une magnifique terrasse privée, parfaite pour des moments de détente en plein air.
À vendre : Emplacement idéal - Résidence située à proximité des rues commerçantes, de la gare, du port et de la plage, offrant un cadre de vie pratique et agréable.
À vendre : Chambre élégante du Lot 15 - Une des deux chambres confortables, parfaites pour un repos paisible après une journée bien remplie.
À vendre : Vue extérieure pittoresque - Découvrez l’environnement charmant de Dieppe, où se trouve la Résidence 16 V.H, un emplacement stratégique et privilégié.
Appartement duplex centre ville, proche commerces et commodités, 76200 DIEPPE
Prix : 229800

Découvrez la Résidence 16 V.H - Une Vie de Charme au Cœur de Dieppe

Terres et Demeures de Normandie a le plaisir de vous présenter la Résidence 16 V.H, un immeuble du 19ème siècle intégralement réhabilité pour offrir le confort moderne que vous méritez, avec ascenseur.


Emplacement Idéal : 

Située à deux pas des rues commerçantes, à proximité de la gare, du port et de la plage de Dieppe, cette résidence bénéficie d'un emplacement stratégique pour un mode de vie pratique et agréable.


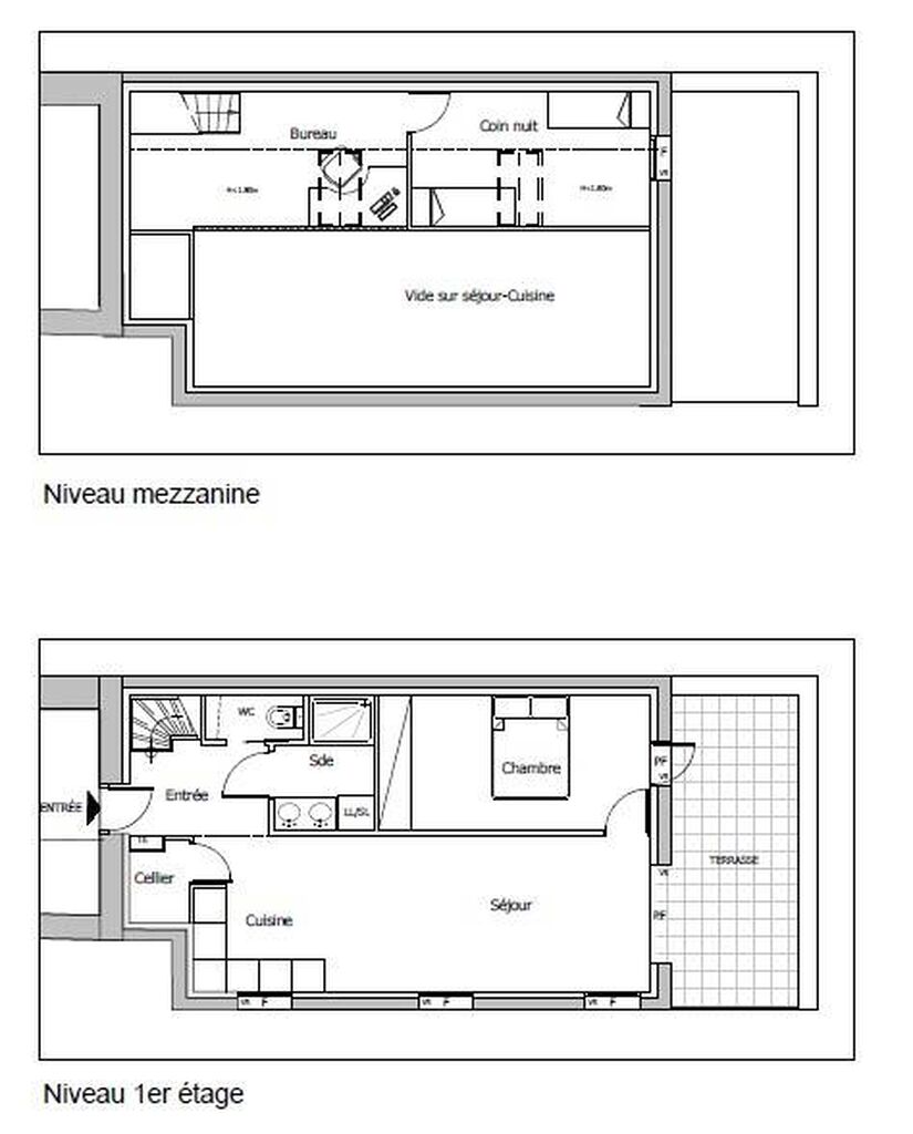
Le Lot 15 - Un Loft en Duplex d'Exception :

  • Surface : 53.27 m² (loi Carrez)
  • Configuration : 2 chambres
  • Atout majeur : Terrasse privée de 14.12 m²


Avantages Financiers :

  • Éligible au PTZ (Prêt à Taux Zéro)
  • Éligible au dispositif fiscal "Denormandie"


Livraison et Conditions de Vente :

  • Livraison prévue : Fin 2025
  • Type de vente : VEFA (Vente en l'État Futur d'Achèvement)
  • Frais de notaire : Réduits


Ne manquez pas cette opportunité unique d’acquérir un bien de caractère, alliant charme d’antan et confort contemporain.

Agent Commercial : Laurent DEEST, RSAC N° 320 951 221.Bien soumis au statut juridique de la Copropriété. Nb de lots : 22. Charges annuelles de copropriété (Montant moyen annuel quote-part du budget prévisionnel vendeur) : 1 000 €.

L'immobilier de caractère, l'âme du pays de Caux